Overview
- Updated On:
- 18. Oktober 2024
Objektbeschreibung
BITTE BEACHTEN SIE, DASS ES SICH UM EIN UNBEFRISTETES MIETVERHÄLTNIS MIT EINER MINDESTMIETDAUER VON 48 MONATEN HANDELT! Der Vermieter strebt ein langfristiges Mietverhältnis an.
Die angebotenen Wohnungen mit einer Wohnungsgröße von circa 42 Quadratmeter bis 94 Quadratmeter sind ab sofort zu vermieten. Die hellen Wohnungen mit 1, 2 und 3-Zimmern befinden sich im 1. Obergeschoss bzw. 2. Obergeschoss einer sehr gepflegten Anlage und wurden erst in 2023 fertig gestellt – Ursprünglich handelte es ich sich um Büroetagen, die nach der Entkernung in Wohnungen im Neubaustandard umgewandelt wurden. Die Bäder sind hell gefliest und dort befindet sich auch der Anschluss für Ihre Waschmaschine. Der Eichenparkettboden in Verbindung mit dem Feinsteinzeugboden in der Küche, verleiht den Räumlichkeiten ein warmes Raumklima. In dieser Einheit gibt es sowohl ein Dusch- als auch ein Wannenbad. Das Highlight der 2- und 3-Zimmer-Wohnungen ist die Loggia, mit einem pflegeleichten WPC-Boden, die Sie über das Wohnzimmer erreichen.
Eine Küchenausstattung ist nicht inbegriffen und muss vom Mieter gestellt werden. Zur Wohnung gehört ein geräumiges Kellerabteil. Ein Personenaufzug ist natürlich vorhanden und Sie haben die Möglichkei einen Stellplatz in der Tiefgarage (kein Duplex!) zu 60 €/Monat anzumieten.
Ausstattung
Zur Ausstattung gehören unter anderem:
- Parkettboden (Eiche) in den Wohn- und Schlafräumen
- Ansprechender Boden aus Feinsteinzeug in der Küche
- Kunststofffenster mit Dreifachverglasung (keine Rollos!)
- Lüftungsanlage
- Wohn-/Essbereich mit offener Küche – Bitte beachten Sie, dass keine Küchenausstattung gestellt wird
- Modernes innenliegendes Duschbad mit großzügiger Dusche, Duschvorhangschiene, Waschbecken, Toilette, Handtuchheizkörper und Lüfter
- Modernes innenliegendes Wannenbad mit Badewanne, Duschvorhangschiene, Waschbecken, Toilette, Handtuchheizkörper, Lüfter und Waschmaschinenanschluss
- Loggia mit WPC-Boden
- Türen in weiß mit Edelstahldrücker
- Schiebetür zum Wohn-/Essbereich
- Gegensprechanlage
- Personenaufzug
- Kellerabteil
- Optional mit TG-Stellplatz (kein Duplex-Parker!)
Lage
Wohnen im traditionellen Münchner Bezirk Laim – eingerahmt von Neuhausen-Nymphenburg, der Schwanthalerhöhe, Sendling-Westpark und Hadern, sowie von Pasing-Obermenzing im Westen ist Laim einer der schönsten und gleichzeitig traditionellsten Münchner Wohnbezirke. Ob schnelles Treiben in der Landsberger Straße oder historische Prägung als früheres Eisenbahnerviertel – Laim hat einen vielseitigen Charme. Als kultureller Hotspot gilt das Interim am Laimer Anger. Ob Adventsmarkt, Maibaumfest oder Faschingstreiben – hier schlägt der Puls des Laimer Lebens. Das Wohnviertel um die Agnes-Bernauer-Straße ist verkehrstechnisch sehr gut angebunden. Zur nächsten Bushaltestelle ist es nur ein kurzer Weg: Die Buslinien 51 und 151 an der Haltestelle „Ammerseestraße“ fahren in unmittelbarer Nähe, die gleichnamige Straßenbahnhaltestelle „Ammerseestraße“ ist ebenfalls fussläufig erreichbar. Über die A96 erreichen Sie viele Wochenendausflugsziele nach knapp 4 km. Geschäfte des täglichen Bedarfs (Lebensmittel & Einkaufen, Apotheke, Ärzteversorgung, Handwerker etc.) sind in geringer Entfernung um das Wohngebiet entlang der Fürstenrieder Straße vorhanden. Als nahegelegene Erholungsgebiete bieten der Münchner Westpark, der Schlosspark Nymphenburg und der Hirschgarten allen Sportbegeisterten, aber auch allen, die einfach nur Erholung suchen vielseitige Möglichkeiten. Die verfügbaren Einheiten befinden sich am Käthe-Bauer-Weg, unweit der A96.
Energieausweis (Bedarfsausweis)
Baujahr: 2021
Energieausweis (Kennwert): 91 kWh/(m2*a)
Energieeffizienz: C
Energieträger: Öl
Energieausweis ausgestellt: 12.10.2022
Energieausweis gültig: 11.10.2032
Sonstiges
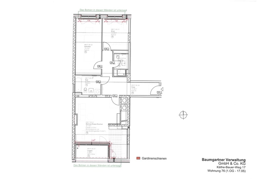
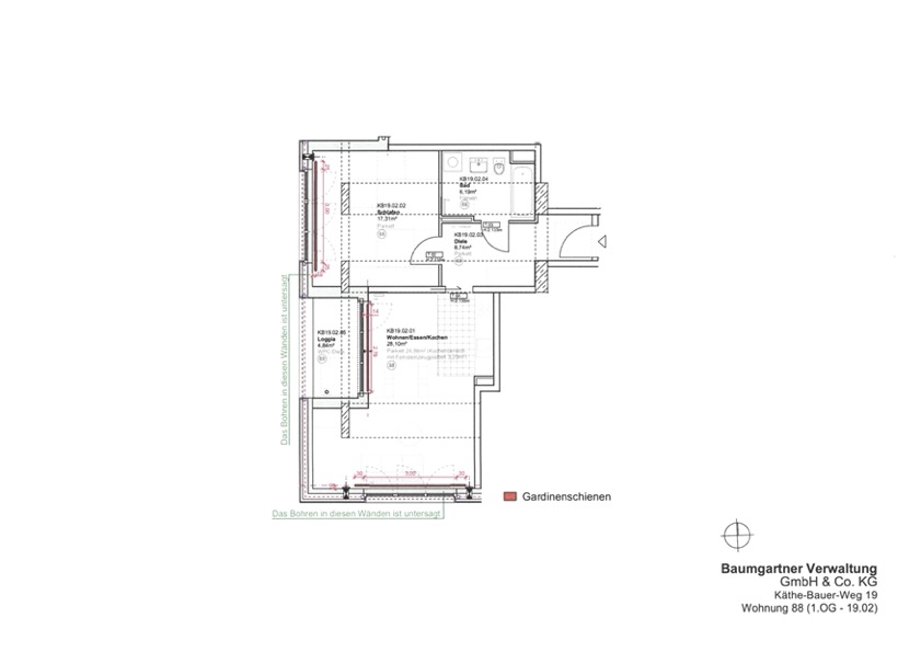
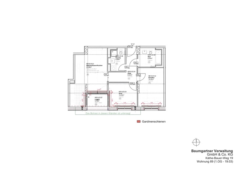
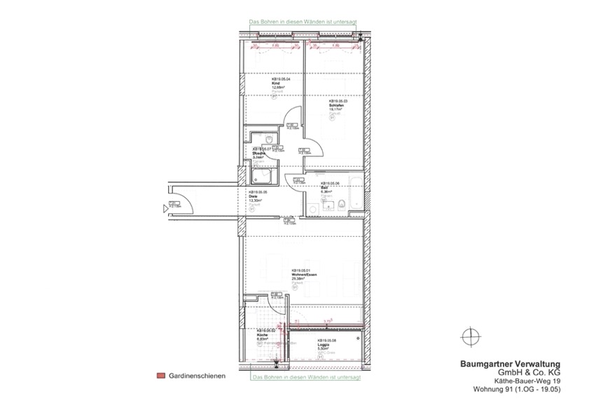
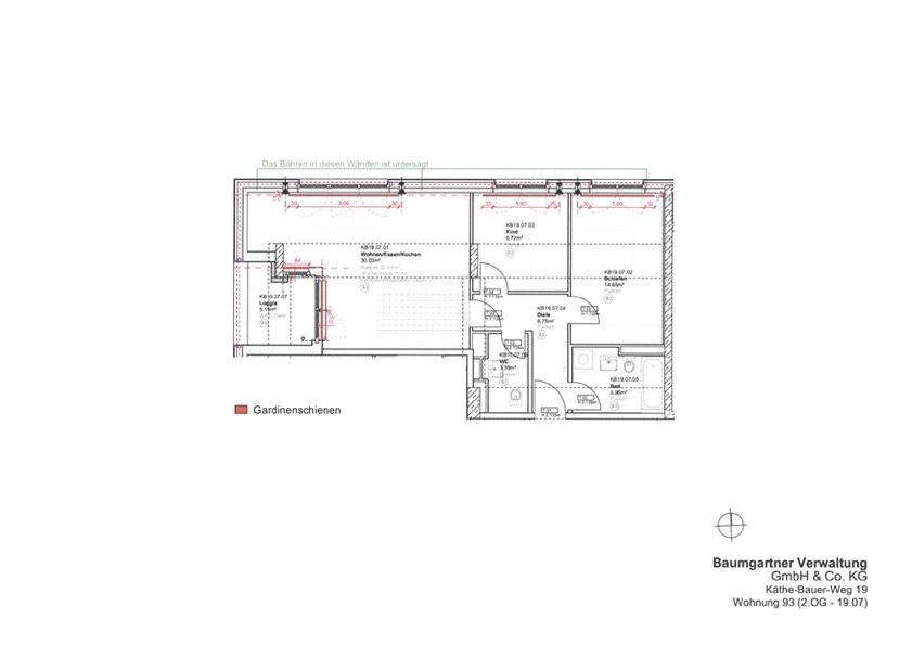
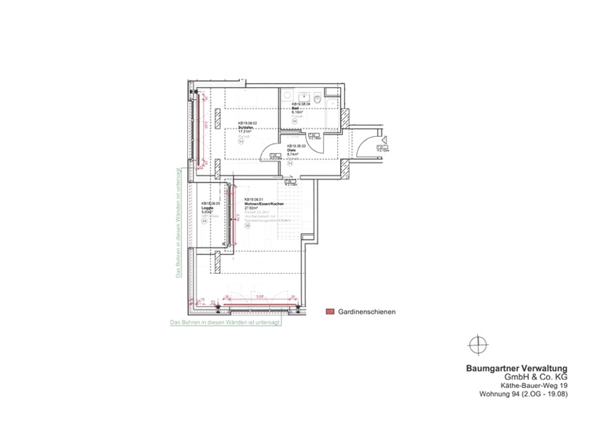
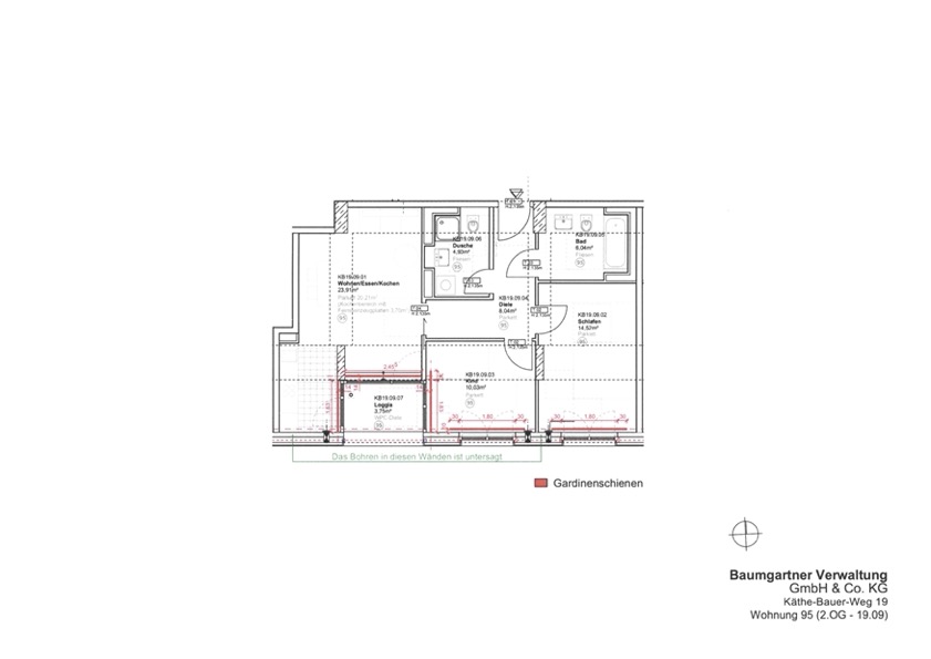
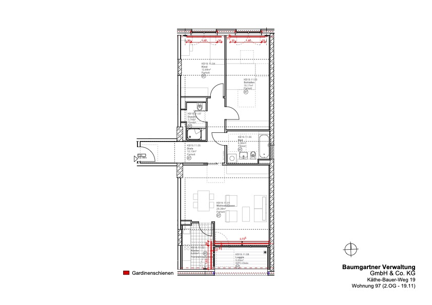
Die Informationen stammen vom Eigentümer. Trotz regelmäßiger Prüfung von Daten, Bildern und Informationen übernehmen wir keine Haftung für die Richtigkeit der Angaben. Die Grundrisse sind nicht maßstabsgetreu. Bitte haben Sie Verständnis dafür, dass wir Unterlagen nur an Interessenten versenden, die uns ihre kompletten Kontaktdaten, inklusive der Telefonnummer, zur Verfügung stellen.
Die Loggia (falls vorhanden) wurde zur Hälfte bei der Wohnflächenberechnung berücksichtigt.
Bitte beachten Sie die Mindestmietdauer von 48 Monaten! Haustiere sind ausdrücklich nicht gestattet!
















